Δημοτικό σχολείο Λυγουριού Άλλο ένα έργο για την παιδεία με υπογραφή ΕΣΠΑ

Κουτσοπόδι, Ιναχος ,Αγία Τριάδα και τώρα Λυγουριό . Μία διαδρομή που έχει την υπογραφή του ΕΣΠΑ και την ουσιαστική συμβολή του στον χώρο της παιδείας .Χρειάσθηκε να περάσουν πολλά χρόνια αναμονής ατελείωτη εργασία και σωστή συνεργασία με την Διαχειριστική Ε.Π. Πελοποννήσου μαζί με την στήριξη της Περιφέρειας Πελοποννήσου ώστε να έρθει η στιγμή το 2019 στο Δήμο Επιδαύρου να πανηγυρίσουν την έγκριση του έργου που θα δώσει μια άλλη ποιότητα στις σχολικές υποδομές της περιοχής ‘’Προσθήκη και επέκταση 12θέσιου Δημοτικού Σχολείου Λυγουριού, απόφαση ένταξης με προϋπολογισμό 1.837.500 €’’ είναι ο τίτλος του έργου και αξίζει να δούμε τι περιλαμβάνει και τι αφορά 

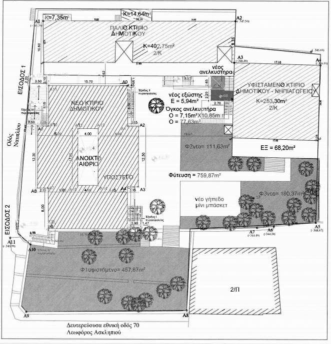
Η Πράξη αφορά στη δημιουργία νέου κτιρίου δημοτικού σχολείου ως προσθήκη σε υφιστάμενο κτίριο με στόχο την σύσταση ενός ενιαίου σχολικού συγκροτήματος στο Ασκληπιείο (Λυγουριό) του Ν. Αργολίδος.Στο χώρο λειτουργεί και Νηπιαγωγείο.
Το οικόπεδο που θα κατασκευαστεί η προσθήκη στο σχολικό συγκρότημα είναι υπερυψωμένο σε σχέση με το επίπεδο των δρόμων κατά 4μ. περίπου, με το κάτω νότιο του όριο να αποτελεί υποχρεωτικό κοινόχρηστο χώρο πρασίνου. Στην δυτική πλευρά του οικοπέδου διέρχεται η ασφαλτοστρωμένη οδός Ναυπλίου από την οποία θα πραγματοποιούνται οι δύο προσβάσεις στο σχολείο.
Η ανάπτυξη του κτιρίου θα είναι διώροφη σε σχήμα ορθογώνιου παραλληλογράμμου με αίθριο και η τοποθέτησή του θα είναι σε διάταξη Π με την υπάρχουσα υποδομή και τον συνολικό προαύλιο χώρο εσωτερικά. Το σχολικό συγκρότημα θα αποτελείται από επιμέρους λειτουργικές ενότητες, με ενοποίηση σε ότι αφορά την τελική τους επικάλυψη με κεραμοσκεπές.
Στην προσθήκη που πρόκειται να πραγματοποιηθεί στα πλαίσια της παρούσας Πράξης πρόκειται να τοποθετηθούν:
ΙΣΟΓΕΙΟ:- Αίθουσα πολλαπλών χρήσεων – Κυλικείο, Κουζίνα βοηθητικά τμήματα
Α’ ΟΡΟΦΟΣ:- 4 νέες αίθουσες διδασκαλίας για το Δημοτικό – χώροι υγιεινής (wc προσωπικού, wc αγοριών – κοριτσιών, wc ΑΜΕΑ χώρος καθαρισμού)
ΥΠΟΓΕΙΟ: -Μηχανολογικές εγκαταστάσεις (αντλιοστάσιο , λεβητοστάσιο / αποθήκη καυσίμων)- Αποθήκες (γενική αποθήκη υλικού , γενικό αρχείο , αποθήκη σχολικών βιβλίων
ΠΕΡΙΒΑΛΛΟΝ ΧΩΡΟΣ:-Χωροθέτηση μικρού ανοιχτού γηπέδου καλοθοσφαίρισης – Συμπληρωματική δεντροφύτευση
Στον χώρο του νέου σχολικού συγκροτήματος πρόκειται να υλοποιηθούν στα πλαίσια της παρούσας Πράξης, όλες οι απαραίτητες διαμορφώσεις και υποδομές για ΑΜΕΑ (π.χ. ανελκυστήρας ΑΜΕΑ, ράμπες για αμαξίδια κλπ), καθώς επίσης πρόκειται να κατασκευαστούν και 3 νέα κλιμακοστάσια.
Όπως χαρακτηριστικά δήλωσε ο Δήμαρχος Επιδαύρου Τάσος Χρόνης: « Οι πρώτες μελέτες, από το 2013 οι αναθεωρήσεις, οι σημειακές αλλαγές, οι εγκρίσεις, οι συμπληρώσεις, οι προσπάθειες κατάθεσης φακέλου και τελικά η ένταξη της πρότασης ήταν τα βήματα που ακολούθησαν όλα αυτά τα χρόνια.
Στο τέλος του 2019, μόλις αναλάβαμε, ανασύραμε τους φακέλους με το έργο. Τρέξαμε να διορθώσουμε

τα λάθη και τις αδυναμίες της πρότασης, κόντρα στο χρόνο αλλά με σύμμαχο την Περιφέρεια Πελοποννήσου για το πρόγραμμα ΕΣΠΑ καταφέραμε να εντάξουμε το σημαντικό αυτό, μεγάλο, έργο το οποίο θα βοηθήσει τα παιδιά μας αλλά και την τοπική κοινωνία να δημιουργήσει για την επόμενη μέρα σε σύγχρονες υποδομές.»

Στις ιδιαιτερότητες του νέου σχολικού συγκροτήματος θα πρέπει να επισημανθεί και ότι το έργο είναι σύμφωνο με τις προδιαγραφές ΑΜΕΑ 
#CohesionGR
Facebook
Twitter
LinkedIn

Νέα της τελευταίας εβδομάδας

Φαντασμαγορικές οι Εκδηλώσεις για το “Κάψιμο του Ιούδα” σε Πορτοχέλι και Ερμιόνη

Με εξαιρετική επιτυχία και πρωτοφανή συμμετοχή του κόσμου, ολοκληρώθηκαν τα πασχαλινά δρώμενα του Δήμου Ερμιονίδας, με επίκεντρο τα δύο εντυπωσιακά έθιμα με το Κάψιμο του Ιούδα,

ΠΕΡΙΣΣΟΤΕΡΑ »

«Μέτωπο» επαγγελματιών κατά του Δήμου Ναυπλιέων: «Ματώνουμε εισπρακτικά – Τέλος στην ανοχή»-Επιστολή σε Ορφανό

Σε ευθεία σύγκρουση με τη δημοτική αρχή Ορφανού έρχεται η Ομάδα Επαγγελματιών του Δήμου Ναυπλιέων, καταγγέλλοντας προχειρότητα και αθέτηση

ΠΕΡΙΣΣΟΤΕΡΑ »

Επερώτηση Λαϊκής Συσπείρωσης για τις Δημόσιες δομές ψυχικής υγείας στην Πελοπόννησο

Πρόσφατα στη Νεάπολη Λακωνίας, μια 30χρονη γυναίκα με σοβαρό πρόβλημα εξάρτησης από το αλκοόλ, βρέθηκε να περιπλανιέται δεμένη πισθάγκωνα από την οικογένειά της. Σύμφωνα με όσα έχουν

ΠΕΡΙΣΣΟΤΕΡΑ »